




















Property description
In the charming coastal town of Petrovac (Budva), nestled in a peaceful, green area, a house with a sea view is for sale. Surrounded by oleanders and a well-maintained garden, this property offers a sense of privacy and year-round relaxation.
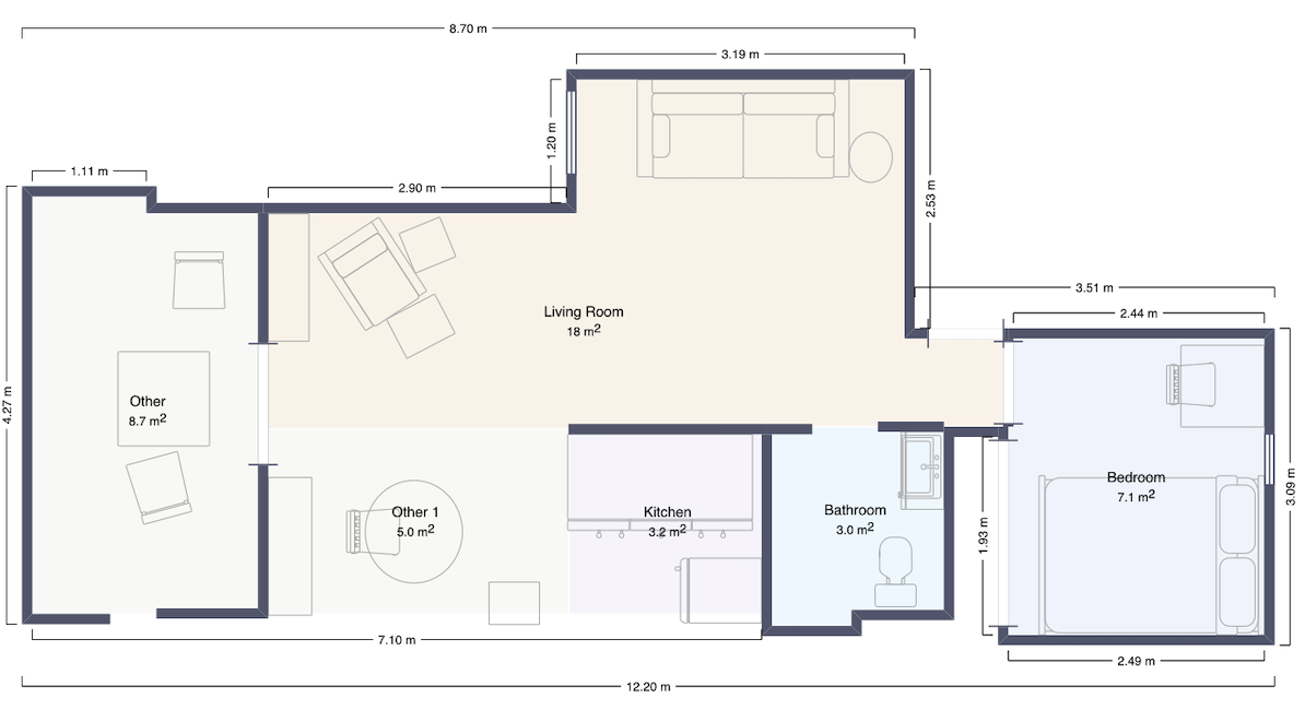
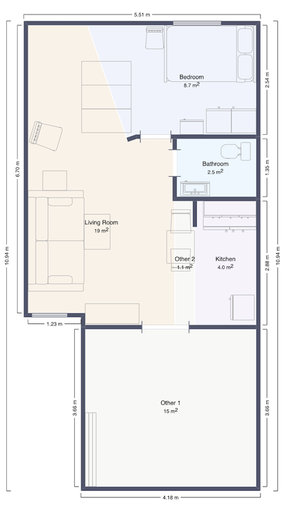
The house consists of a ground floor and three upper levels. Two residential units, connected by an internal staircase, are included in the sale. The second floor features a spacious one-bedroom apartment of 55 m², while the third floor hosts a similar apartment of 50 m². Both units come with terraces that offer a beautiful view of the sea — perfect for a morning coffee or unwinding at sunset. Fully furnished and thoughtfully laid out, each apartment includes a living room with a dining area and kitchen, a bedroom, and a bathroom — making them ideal for living or as a rental investment.
The ground floor (24 m²) is currently used as a storage space but can easily be converted into a small additional apartment.
This house blends Mediterranean charm, functionality, and an excellent location. Petrovac, with its seaside promenade, pine forest, and crystal-clear waters, offers the perfect balance between vibrant summer energy and comfortable year-round living.
Characteristics
Documments
Send an inquiry
You did not find what you want or have to offer real estate?
Please describe what kind of property you are looking for or offering so we can respond to your request as soon as possible.